本文へスキップします。
Language
検索
言語 / Language
サイト内検索
ここから本文です。
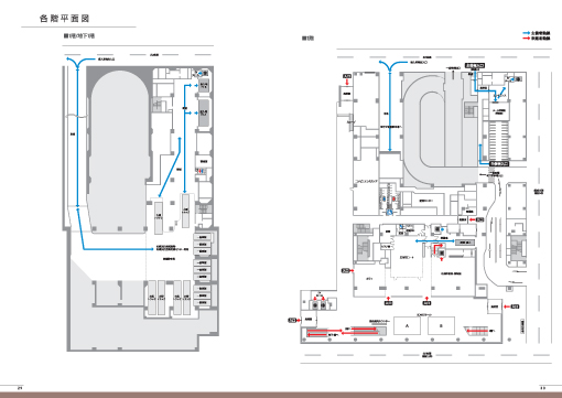
各階平面図(PDF形式/1,121KB)
座席表(PDF形式/4,971KB)
劇場舞台図面(6種類)(2020年4月版)(PDF形式/8,390KB)
クリエイティブスタジオ舞台図面(3種類)(2020年4月版)(PDF形式/360KB)
]
SCARTSコート・SCARTSスタジオ・SCARTSモール図面(4種類)(PDF形式/970KB)